Коттедж, бульвар Радости, 2 Показать на карте
с. Озерецкое
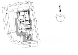
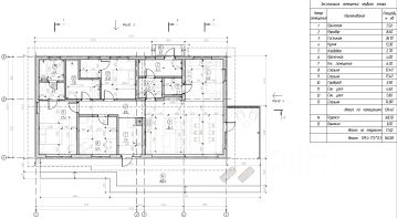
Рассрочка 0% на 2 года от застройщика!Продается коттедж ''Уют'' в жилом комплексе ''Мечта''.Коттедж ''Уют'' представляет собой идеальное сочетание комфорта и рациональной планировки. Многие выбирают одноэтажный коттедж из-за удобства проживания: в нём нет лестницы, что позволяет использовать больше полезной площади. Мы это подтверждаем!Дом удачно разделён на общую зону, которая состоит из прихожей, кухни с кладовой, гостиной и банного комплекса, и на приватную территорию только для владельцев дома и их детей. Предусмотрен камин.ОСНОВНЫЕ ХАРАКТЕРИСТИКИ- Общая площадь: 197.45 м²- Площадь участка: 9.98 сот.- 1 этаж- 3 спальни- 3 ванные комнаты- Терраса: 25.27 м²- Сауна с душевой- Объединенные кухня и гостиная- Отделка: Базовая- Заселение: 4 квартал 2025 г.Коттеджный посёлок ''Мечта'' находится всего в 23 км от МКАД по Дмитровскому или Ленинградскому шоссе. Дорога до Москвы на автомобиле займёт 30 минут. Также можно воспользоваться общественным транспортом: автобусы ходят по расписанию, поэтому не придётся переживать из-за опозданий и задержек. До МЦД-1 ''Лобня'' — 15-20 минут, до станции метро ''Физтех'' — 30-35 минут на общественном транспорте.Инфраструктура включает в себя муниципальную школу и детские сады, кабинет врача общей практики, множество кафе и ресторанов, а также различные спортивные и детские площадки.В пешей доступности от посёлка расположены лес и три реликтовых озера — Долгое, Круглое и Нерское, а также реки Альба, Уча и Волгуша.Территория посёлка закрыта для посторонних, находится под охраной и патрулируется. На въезде расположен КПП. Камеры видеонаблюдения работают круглосуточно на всей территории посёлка. Вы и ваши дети будете чувствовать себя в безопасности.
197 м2
1 этаж
- Показать контакты
- Добавить в избранное
197 м2
1 этаж
39 939 000
202 274 /м2
