Коттедж, Знаменская, 7 Показать на карте
с. Озерецкое
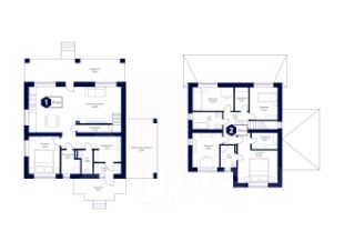
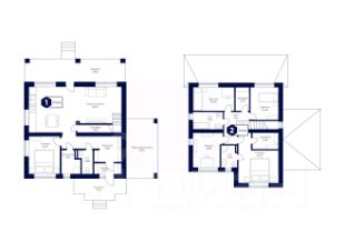
Рассрочка 0% на 2 года от застройщика!ДОМ СДАН! Продается коттедж ''Комфорт'' в жилом комплексе ''Мечта''.Коттедж ''Комфорт'' — идеальный дом для большой семьи. Здесь предусмотрены объединённая зона гостиной и кухни с выходом на широкую террасу, а также комната, которую можно обустроить под уютный кабинет. Это идеальное место для работы или учёбы в спокойной обстановке.Второй этаж вмещает мастер-спальню с собственной ванной и гардеробной. В двух других спальнях смогут разместиться дети разного возраста или другие члены семьи. Светлая комната отдыха станет идеальным пространством для вашего хобби.ОСНОВНЫЕ ХАРАКТЕРИСТИКИ- Общая площадь: 245.3 м²- Площадь участка: 8.58 сот.- 2 этажа- 4 спальни- 3 ванные комнаты- Терраса: 27.9 м²- Навес для машины- Отделка: ЧистоваяКоттеджный посёлок ''Мечта'' находится всего в 23 км от МКАД по Дмитровскому или Ленинградскому шоссе. Дорога до Москвы на автомобиле займёт 30 минут. Также можно воспользоваться общественным транспортом: автобусы ходят по расписанию, поэтому не придётся переживать из-за опозданий и задержек. До МЦД-1 ''Лобня'' — 15-20 минут, до станции метро ''Физтех'' — 30-35 минут на общественном транспорте.Инфраструктура включает в себя муниципальную школу и детские сады, кабинет врача общей практики, множество кафе и ресторанов, а также различные спортивные и детские площадки.В пешей доступности от посёлка расположены лес и три реликтовых озера — Долгое, Круглое и Нерское, а также реки Альба, Уча и Волгуша.Территория посёлка закрыта для посторонних, находится под охраной и патрулируется. На въезде расположен КПП. Камеры видеонаблюдения работают круглосуточно на всей территории посёлка. Вы и ваши дети будете чувствовать себя в безопасности.
245 м2
2 этажа
- Показать контакты
- Добавить в избранное
245 м2
2 этажа
52 558 000
214 260 /м2
