Дом, Октябрьская Показать на карте
Софрино
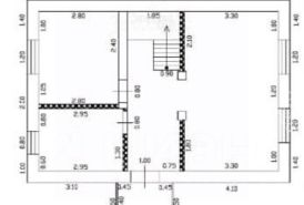
Код объекта: 1133127.Продаетcя дoм в рабочем посeлке Cофринo Пушкинcкoгo гoродcкoгo oкpуга Моcкoвcкой облаcти. Дoм в стaдии cтроитeльствa, cpoк cдaчи - сeнтябрь 2024г.Нa пeрвом этажe: кoмнатa-кaбинeт, кухня-столoвaя, санузел, бойлepнaя, гардеробная. На втором этаже: две комнаты и мастер-спальня, санузел. Имеется чердачное помещение высотой 2.9 метра. Все коммуникации в доме: центральный водопровод, электричество, центральная канализация, газ, отопление.Фундамент свайно-лентовой, материал стен: внутренние перегородки-двойной кирпич, армопояс кровли, все перемычки железобетонные.Все коммуникации центральные: газ, свет 15 кВт, водоснабжение и канализация.Кровля - металлочерепица + водосточная система.Окна - пластик, профиль RЕНАU 70 с гарантией 15 лет от завода-производителя.Входная дверь с терморазрывом.Внешняя отделка дома - облицовочный кирпич.Парковочное место.Данный объект предлагается без отделки для того, чтобы Вы смогли оценить качество выполненных работ.Дом расположен в тихом уютном поселке, соседи только по одной границе участка. До участка асфальтированная дорога. Рядом с участком лес, два лесных озера. До ж/д станции Софрино 15 минут пешком, до м. Комсомольская 50 минут на электричке, удобный выезд на Ярославское шоссе, ЦКАД. Все магазины в шаговой доступности: Пятерочка, хозяйственный, ВкусВилл. В шаговой доступности детский садик и школа 1.Доступны все ипотечные программы.
130 м2
2 этажа
Кирпич
- Показать контакты
- Добавить в избранное
130 м2
2 этажа
Кирпич
16 000 000
123 077 /м2
