Дом, бульвар Радости, 27 Показать на карте
с. Озерецкое
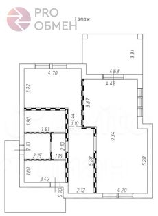
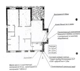
Вашему вниманию предлагается жилой дом на земельном участке 451 кв.м, в закрытом охраняемом коттеджном поселке Мечта.Участок правильной (квадратной) формы, ровный. По периметру огорожен забором, установлено видеонаблюдение. На участке высажены плодовые деревья и декоративные кустарники. Статус земельного участка ИЖС.Дом построен в 2016 году. Общая площадь составляет 138 кв.м. (фактическая 167 кв.м.). Зонирование территории: гостевые парковки на два машиноместа перед домом + парковка под навесом на одно машиноместо, хозяйственный блок, зона барбекю.Центральные коммуникации: газ, электричество (15 кВт), канализация, водопровод.Функциональная планировка дома: Первый этаж. Общая площадь 86,7 кв.м. Холл 15,8 кв.м. Кухня (11 кв.м.), совмещенная с гостиной (17 кв.м.) с выходом на веранду (10 кв.м.). Изолированные комнаты: 10,2 кв.м. и 12,9 кв.м. С/У с душевой 5,8 кв.м. Котельная 4 кв.м. Высота потолка 2,6 м.Второй этаж. Общая площадь 80,5 кв.м. Холл 9,0 кв.м. Жилая комната 16,3 кв.м. Спальная комната (20,6 кв.м.) с гардеробной (16,5 кв.м.). Рабочий кабинет 6,2 кв.м. Ванная комната 9,5 кв.м. Кладовая 2,4 кв.м. Ширина лестничного марша 87 см. Высота потолка в верхней точке 2,54 м.В доме остаются мебель и техника.Коттеджный поселок предлагает современную и качественную инфраструктуру: частные и муниципальные детские сады, частная и государственная муниципальная школы, общественный центр с кружками и секциями для детей, детские и спортивные площадки, медицинский центр, супермаркеты, кафе, салоны красоты, маркетплейсы. Поселок заселен и благоустроен.Транспортная доступность. Коттеджный поселок расположен в 23 км. от МКАД по Дмитровскому и Рогачевскому шоссе. Удобные выезды на Ленинградское, а также Дмитровское шоссе через Северный обход Лобни. Рядом с домом расположена остановка общественного транспорта до МЦД Лобня.В собственности с 2016 года. Один взрослый собственник. Никто не зарегистрирован. Без ограничений и обременений. Свободная продажа. Показ по предварительной договоренности.
137 м2
2 этажа
- Показать контакты
- Добавить в избранное
137 м2
2 этажа
24 000 000
174 165 /м2
