Если цена в объявлении изменится, мы сразу сообщим вам об этом на электронную почту.
Нажимая «Подписаться», вы соглашаетесь с правилами.
продам дом, Лесной переулок, 859 500 000 ₽
11 дек
Дата публикации объявления
Обн. вчера
Дата обновления объявления
119 000 ₽/м²
Чистая продажа
Термин "Чистая продажа" означает, что в квартире никто не прописан или
есть куда выписаться и вывезти вещи. Это лучший вариант для покупателя.
Вероятность срыва сделки минимальна.
Этажей2
Площадь участка18 соток
Общая площадь500 м2
Материал домакирпич
ЭлектричествоЕсть
Газоснабжениецентральное
Представьте себе жизнь в заповедном уголке, всего в 5 км от Москвы! В окружении живописного Клязьминского лесопарка вас ждет не просто дом, а настоящий оазис комфорта и стиля.Дом площадью 500 кв.м., построенный по Канадской каркасной технологии, имеет многослойную конструкцию стен: поверх каркаса выполнена кирпичная кладка, облицованная клинкерной плиткой. Внутренняя отделка выполнена двойным слоем гипсокартона. Такая конструкция значительно повышает теплоизоляционные свойства дома и увеличивает его устойчивость к деформациям, вызванным колебаниями фундамента.
ПРЕИМУЩЕСТВА РАСПОЛОЖЕНИЯ Близость к городу: До станции метро ''Физтех'' всего 9 минут на автомобиле. Удобный выезд на Дмитровское шоссе без пробок позволит вам быстро добраться до Москвы.
Представьте себе жизнь в заповедном уголке, всего в 5 км от Москвы! В окружении живописного Клязьминского лесопарка вас ждет не просто дом, а настоящий оазис комфорта и стиля.Дом площадью 500 кв.м., построенный по Канадской каркасной технологии, имеет многослойную конструкцию стен: поверх каркаса выполнена кирпичная кладка, облицованная клинкерной плиткой. Внутренняя отделка выполнена двойным слоем гипсокартона. Такая конструкция значительно повышает теплоизоляционные свойства дома и увеличивает его устойчивость к деформациям, вызванным колебаниями фундамента.
ПРЕИМУЩЕСТВА РАСПОЛОЖЕНИЯ Близость к городу: До станции метро ''Физтех'' всего 9 минут на автомобиле. Удобный выезд на Дмитровское шоссе без пробок позволит вам быстро добраться до Москвы. Привилегированное окружение: Здесь живут успешные и респектабельные соседи. Участки просторные, застройка не плотная, что гарантирует приватность и комфорт. Безопасность и комфорт: Асфальтированные дороги регулярно чистятся. Въезд на территорию охраняется шлагбаумом и профессиональной охраной. Вы всегда будете чувствовать себя в безопасности.
ИЗЫСКАННЫЙ УЧАСТОК На 18 сотках земли раскинулся настоящий райский сад. Ландшафтный дизайн с продуманным озеленением создает атмосферу умиротворения и красоты. Изюминка участка - живописный пруд с грациозными карпами, которые живут здесь уже много лет. Просторное патио с мангалом и камином станет идеальным местом для отдыха на свежем воздухе с видом на пруд и детскую площадку. Вечерняя подсветка создает волшебную атмосферу. Удобный подъезд с автоматическими воротами с двух параллельных улиц обеспечивает комфортную парковку для нескольких автомобилей.
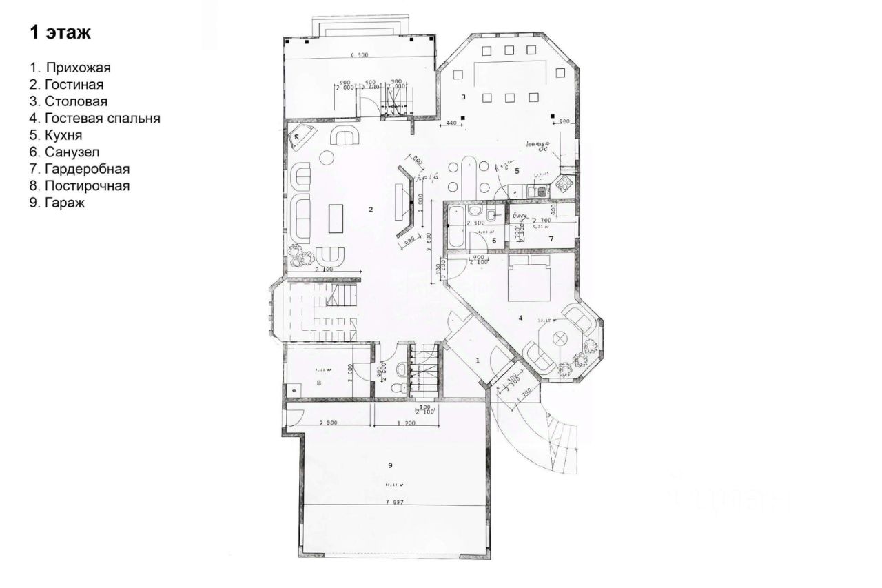
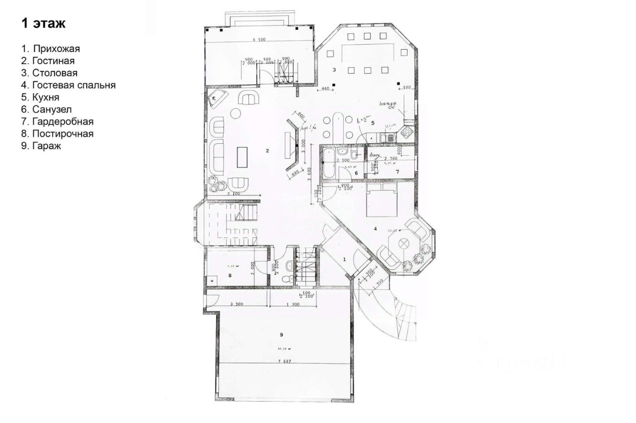
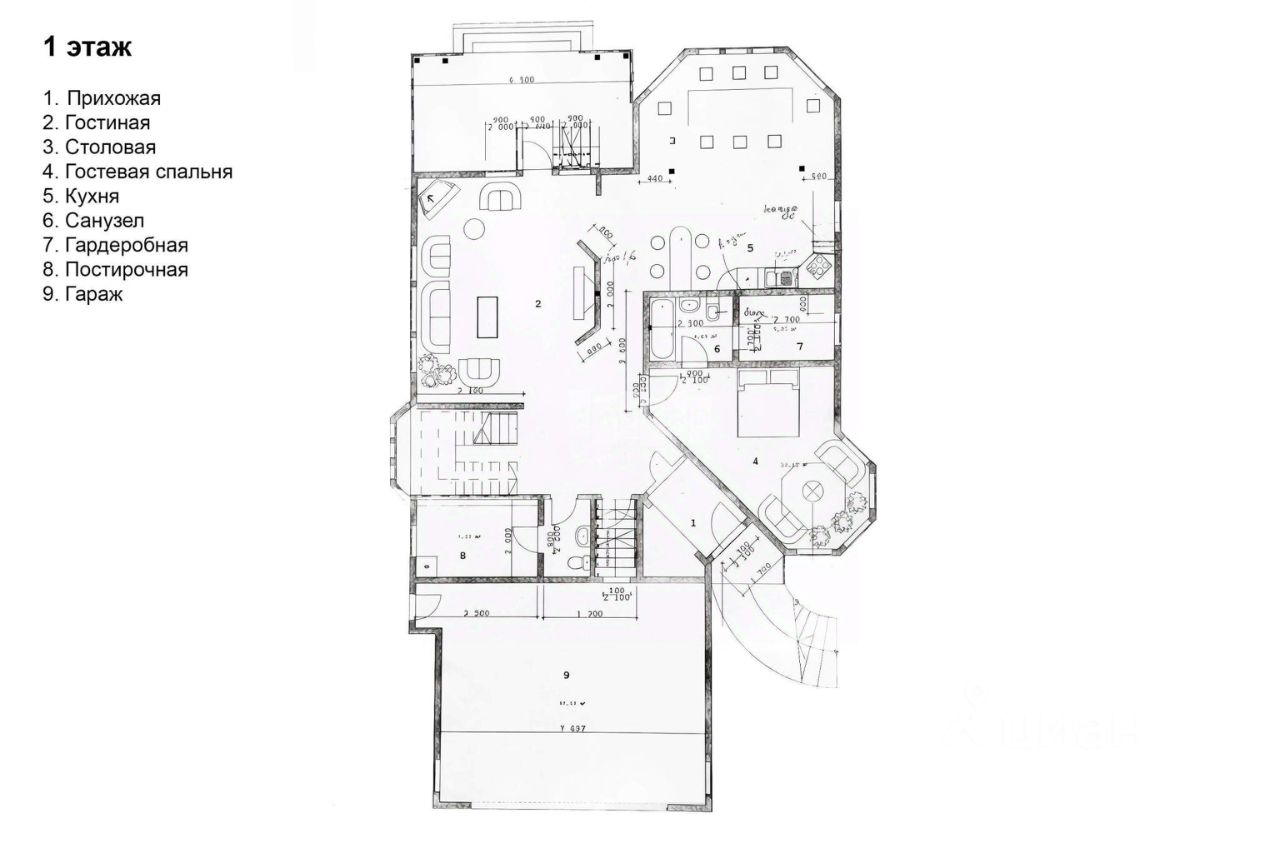
БЕЗУПРЕЧНЫЙ ДОМ Внутри дома площадью почти 500 кв.м вас ждет пространство, где каждая деталь продумана до мелочей. Эксклюзивный дизайн и декор создают неповторимую атмосферу. Мебель и техника премиум-класса, натуральные отделочные материалы, включая паркет из бамбука и травертин, подчеркивают высокий статус дома. Удобство и функциональность: Вы можете войти в дом через парадный вход или из гаража на два автомобиля. В холле расположены гостевой санузел, постирочная и лестница на другие этажи. Сердце дома: На 1 этаже расположена прихожая, светлая гостиная со вторым светом и выходом на террасу. Кухня от немецкого производителя оснащена современной техникой. Просторная обеденная зона с панорамным видом на участок. Также здесь расположена уютная спальня с индивидуальной ванной комнатой и гардеробной. гостевой санузел, постирочная. Личное пространство: На 2 этаже расположены мастер-спальня и две дополнительные комнаты, одна из которых оборудована под кабинет. Каждая комната имеет собственную ванную и гардеробную. Развлечения и релакс: Цокольный этаж - это зона отдыха с просторной второй кухней, винным шкафом, бильярдной, СПА-зоной с джакузи и баней ''Маслова'', спортивным залом, гардеробной и тех. помещениями.