Если цена в объявлении изменится, мы сразу сообщим вам об этом на электронную почту.
Нажимая «Подписаться», вы соглашаетесь с правилами.
продам дом, Марфино9 000 000 ₽
10 окт
Дата публикации объявления
Обн. 5 мая
Дата обновления объявления
50 000 ₽/м²
Чистая продажа
Термин "Чистая продажа" означает, что в квартире никто не прописан или
есть куда выписаться и вывезти вещи. Это лучший вариант для покупателя.
Вероятность срыва сделки минимальна.
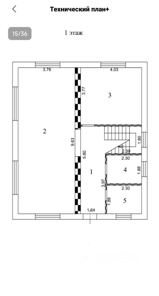
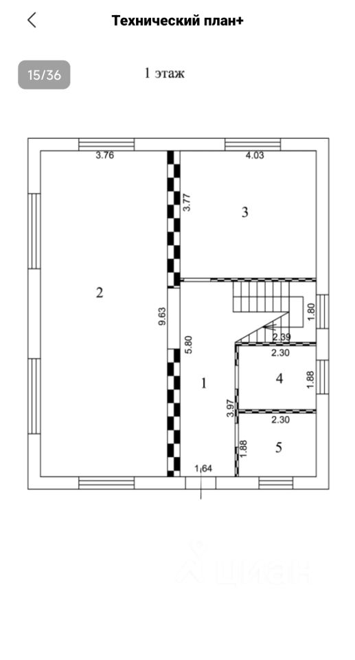
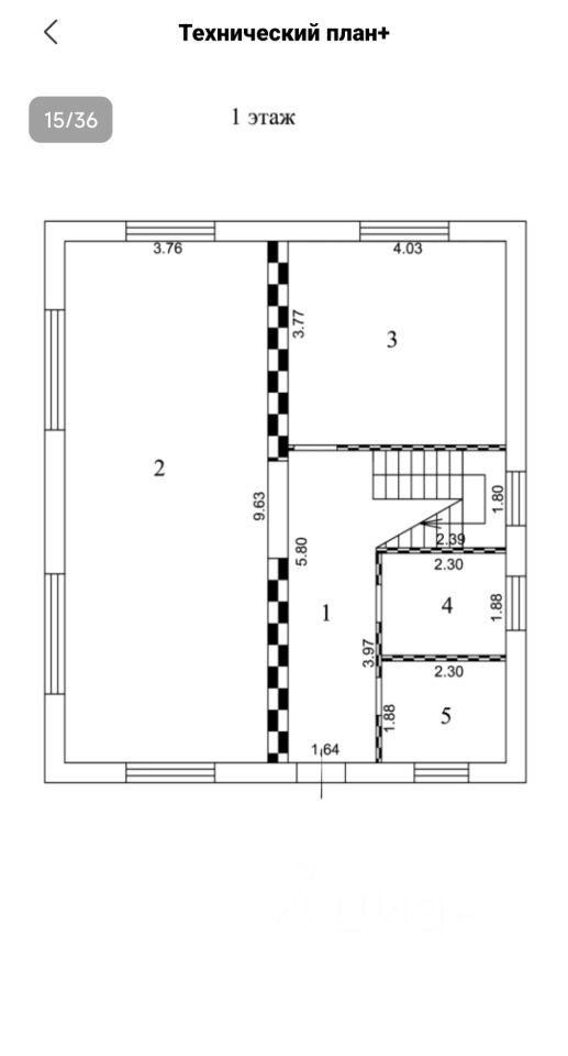
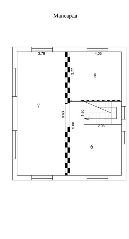
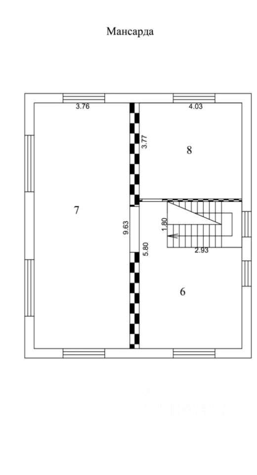
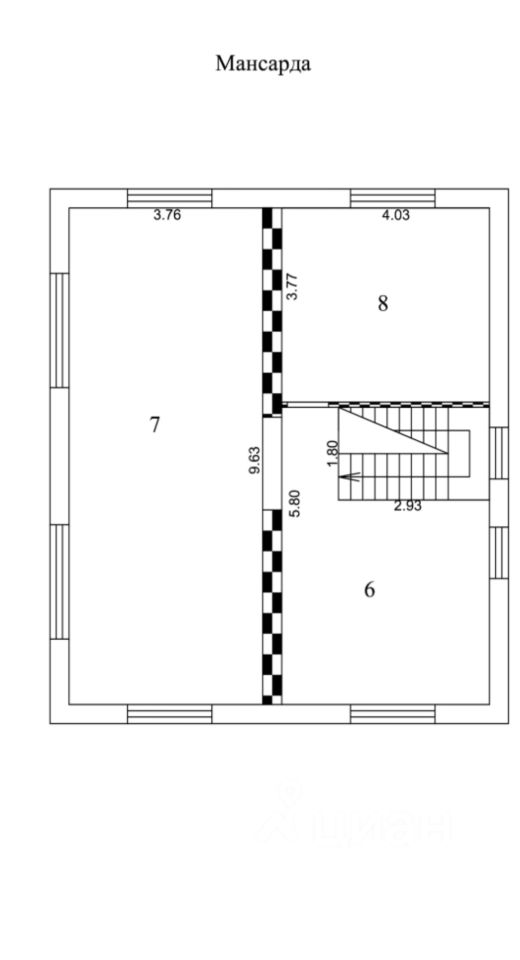
Этажей2
Площадь участка6 соток
Общая площадь180 м2
ЭлектричествоЕсть
Газоснабжениецентральное
К Вашему вниманию продается дом в окружении леса в селе Марфино ул. Богородцкая площадью 180 м2. Я собственник! Подходит под семейную ипотеку 6%.
Фундамент монолит свайно - ростверковый, сверху железобетонная плита.
Стены пеноблок толщина 400 мм (не требующий дальнейшего утепления).
Крыша металлочерепица . Цвет графит утепление 200 мм + защита от птиц. Меж этажное перекрытие 200 мм утепление с применением дерева и металлических швеллеров. Окна ПВХ + москитные сети.
На первом этаже из пеноблоков сделанны перегородки толщиной 100 мм. В доме 2 сан/ узла.
К Вашему вниманию продается дом в окружении леса в селе Марфино ул. Богородцкая площадью 180 м2. Я собственник! Подходит под семейную ипотеку 6%.
Фундамент монолит свайно - ростверковый, сверху железобетонная плита.
Стены пеноблок толщина 400 мм (не требующий дальнейшего утепления).
Крыша металлочерепица . Цвет графит утепление 200 мм + защита от птиц. Меж этажное перекрытие 200 мм утепление с применением дерева и металлических швеллеров. Окна ПВХ + москитные сети.
На первом этаже из пеноблоков сделанны перегородки толщиной 100 мм. В доме 2 сан/ узла.
Парковочное место отсыпано гравием. Скважина на участке 32 метра. Электричество 15 кВт , тариф деревенский.
Могу сделать ремонт под ключ учитывая все Ваши пожелания!
Предоставлю фото и видео отчёт всех этапов строительства!
Подходит под любую ИПОТЕКУ! Звоните , приезжайте всё детально расскажу!