Если цена в объявлении изменится, мы сразу сообщим вам об этом на электронную почту.
Нажимая «Подписаться», вы соглашаетесь с правилами.
продам дом, Северная, 28725 000 000 ₽
11 сен
Дата публикации объявления
Обн. 10 окт
Дата обновления объявления
426 471 ₽/м²
Чистая продажа
Термин "Чистая продажа" означает, что в квартире никто не прописан или
есть куда выписаться и вывезти вещи. Это лучший вариант для покупателя.
Вероятность срыва сделки минимальна.
Этажей2
Площадь участка410 соток
Общая площадь1700 м2
Материал домамонолит
ЭлектричествоЕсть
Газоснабжениецентральное
Предлагается вашему вниманию эксклюзивная резиденция, расположенная на участке 4,1 га в лесном массиве, на закрытой территории коттеджного поселка премиум-класса Вешки. По границе участка проходит парк 200 Га, в 300 метрах протекает живописная река Чермянка.
В основе заложена концепция комфортной и приватной зоны проживания для владельцев особого статуса.
Два периметра охраны (собственный и внешний) оборудованы системой видеонаблюдения, датчиками движения и пропускной системой. Высота забора 3,5м.
Заезд через общий КПП и собственная дорога позволяют планировать маршруты через Липкинское или Алтуфьевское шоссе.
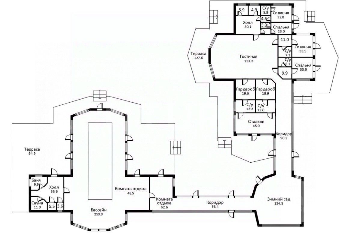
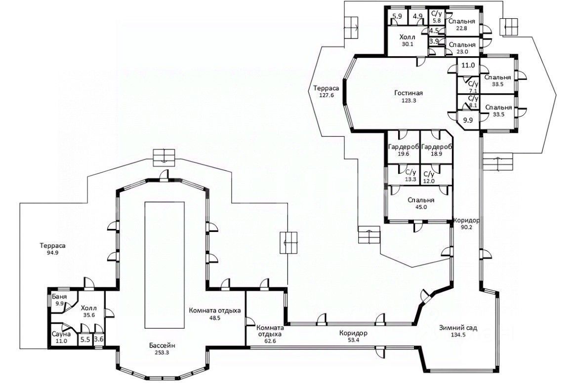
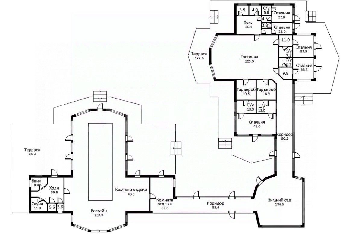
За проектирование основного дома, общей площадью 1540 м2, отвечало американское архитектурное бюро Norwood Architects.
Предлагается вашему вниманию эксклюзивная резиденция, расположенная на участке 4,1 га в лесном массиве, на закрытой территории коттеджного поселка премиум-класса Вешки. По границе участка проходит парк 200 Га, в 300 метрах протекает живописная река Чермянка.
В основе заложена концепция комфортной и приватной зоны проживания для владельцев особого статуса.
Два периметра охраны (собственный и внешний) оборудованы системой видеонаблюдения, датчиками движения и пропускной системой. Высота забора 3,5м.
Заезд через общий КПП и собственная дорога позволяют планировать маршруты через Липкинское или Алтуфьевское шоссе.
За проектирование основного дома, общей площадью 1540 м2, отвечало американское архитектурное бюро Norwood Architects. Цоколь и несущие стены выполнены по монолитной технологии, материал стен канадский брус и португальский кирпич, кровля мягкая черепица.
Четыре отдельных жилых пространства (110+60+50+50 м2) с мастер спальнями, гардеробами, санузлами и собственными выходами на веранды соединены просторной гостиной с камином, общей площадью 120 м2. Большой светлый кабинет создает комфортную обстановку для работы. В отделке использовались только высококачественные, натуральные материалы. Вся мебель от ведущих европейский производителей изготавливалась по индивидуальному заказу.
На цокольном этаже расположены кинотеатр, комнаты отдыха, винный погреб. Большая гардеробная и комната для хранения меховых изделий удовлетворит самый изысканный вкус.
СПА расположен в отдельном крыле, оно соединяется с жилой частью красочной галереей с панорамными окнами и зимним садом. Есть спортивный зал, бассейн 12*5 метров, джакузи, хамам, сауна, баня, купель.
Территория участка разбита на парковые зоны. Есть живописный пруд, лесной массив, много прогулочных дорожек.
Кухня, зал для мероприятий и барбекю зона расположены в отдельном здании площадью 120 м2
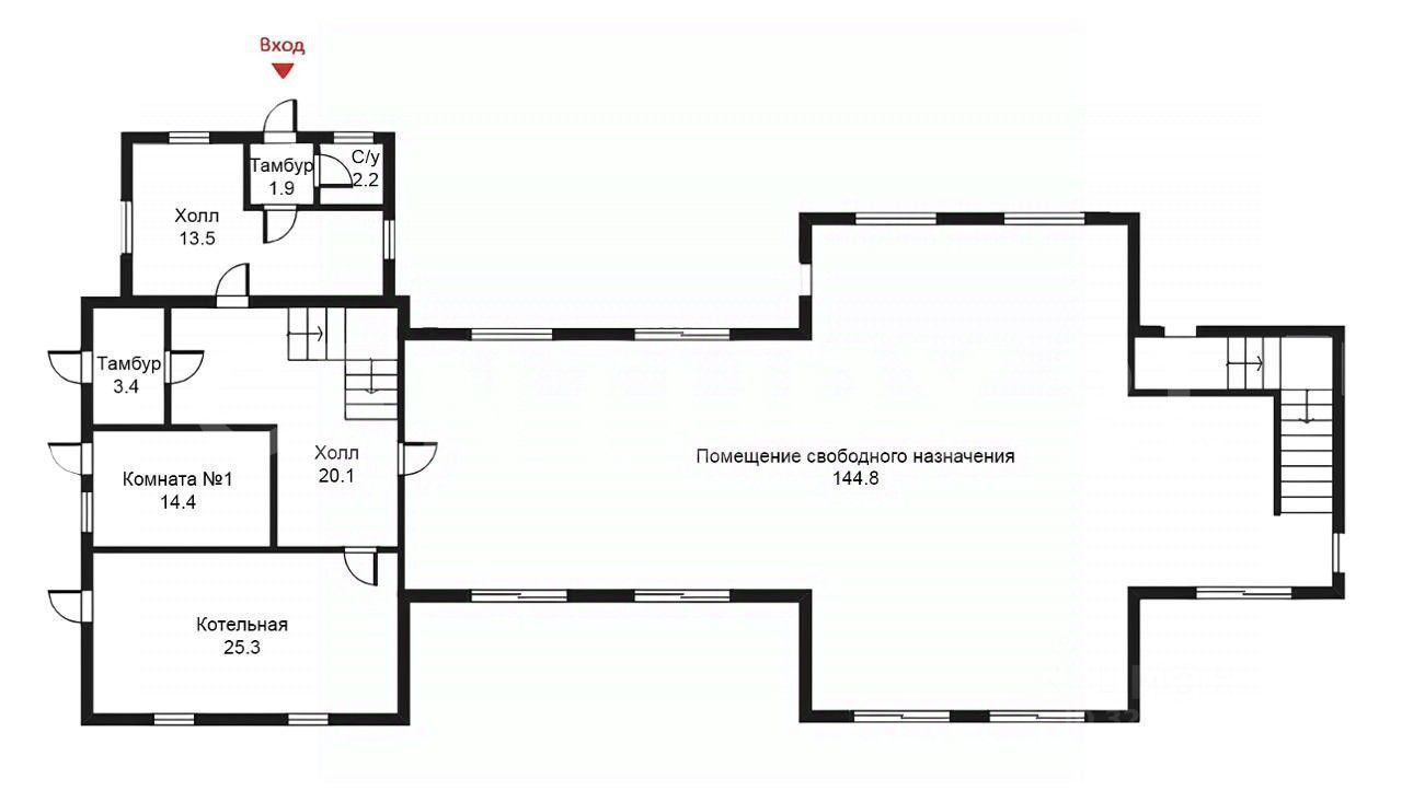
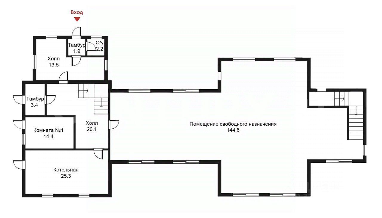
Персонал и охрана размещаются в отдельном доме, общей площадью 452 м2, на первом этаже которого расположен паркинг на 6 автомобилей и котельная.
Все инженерные системы в исправном состоянии, своевременно проходят ТО. Установлены дублирующие котлы, дизель генераторы и многое другое.
Аукцион, подробности проведения вы можете получить у консультанта по номеру телефона в объявлении.
Один взрослый собственник, полная стоимость в договоре. Документы готовы к сделке. Помощь в одобрении ипотеки от 14,99%, рассрочка. Есть возможность обменять вашу недвижимость по системе трейд ин.
Звоните, не упустите возможность приобрести эксклюзивную резиденцию на выгодных условиях.