Если цена в объявлении изменится, мы сразу сообщим вам об этом на электронную почту.
Нажимая «Подписаться», вы соглашаетесь с правилами.
продам дом, Марфино14 550 000 ₽
28 июня 2025
Дата публикации объявления
Обн. 19 июля 2025
Дата обновления объявления
121 250 ₽/м²
Чистая продажа
Термин "Чистая продажа" означает, что в квартире никто не прописан или
есть куда выписаться и вывезти вещи. Это лучший вариант для покупателя.
Вероятность срыва сделки минимальна.
Этажей1
Площадь участка5,1 соток
Общая площадь120 м2
ЭлектричествоЕсть
Газоснабжениецентральное
Элегантный новый дом 120 кв.м в Новом Марфино свежий взгляд на комфортную жизнь! ПОДХОДИТ ДЛЯ СЕМЕЙНОЙ ИПОТЕКИ 6%!
Мы поможем с оформлением ипотеки!
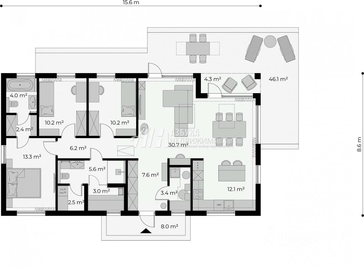
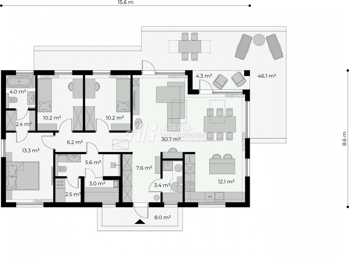
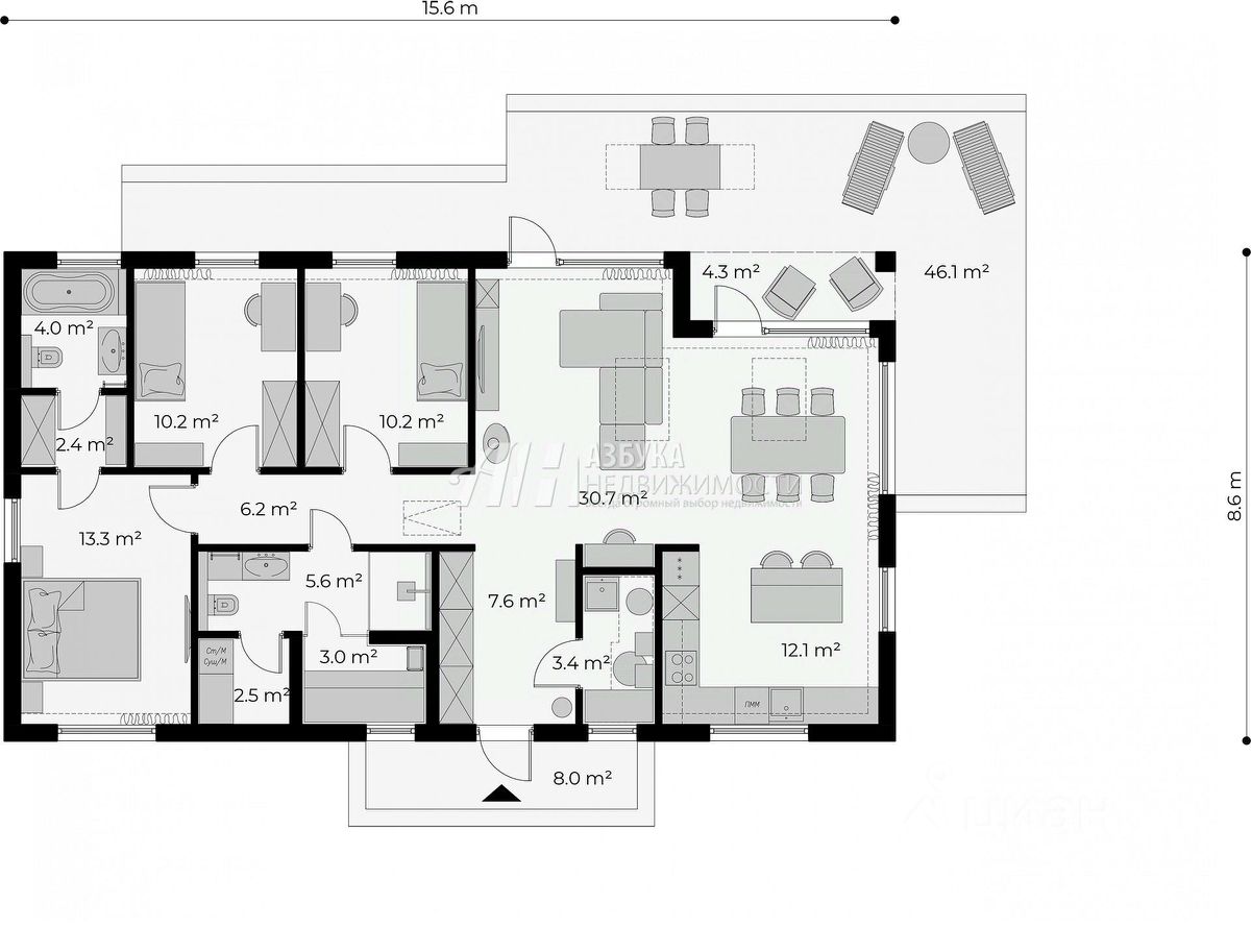
РАБОТАЕМ С ЭСКРОУ СЧЕТАМИ. РАСПОЛОЖЕНИЕ: в селе Марфино, что в 20 км от Москвы по Дмитровскому направлению. ПЛАНИРОВКА И МАТЕРИАЛЫ: Светлая кухня-столовая 12,1 кв.м объединена с гостиной 30,7 кв.м, создавая пространство для уютных встреч. Три спальни 10,2 кв.м, 10,2 кв.м и 13,3 кв.м обеспечивают комфорт каждому члену семьи. Функциональный холл 6,2 кв.м соединяет помещения, а прихожая 7,6 кв.м удобно зонирует входную зону. Два санузла 4 кв.м и 2,5 кв.м, постирочная 3 кв.м и гардеробные 2,4 кв.м и 5,6 кв.м добавляют удобства. Идеальный баланс стиля и практичности!
Элегантный новый дом 120 кв.м в Новом Марфино свежий взгляд на комфортную жизнь! ПОДХОДИТ ДЛЯ СЕМЕЙНОЙ ИПОТЕКИ 6%!
Мы поможем с оформлением ипотеки!
РАБОТАЕМ С ЭСКРОУ СЧЕТАМИ. РАСПОЛОЖЕНИЕ: в селе Марфино, что в 20 км от Москвы по Дмитровскому направлению. ПЛАНИРОВКА И МАТЕРИАЛЫ: Светлая кухня-столовая 12,1 кв.м объединена с гостиной 30,7 кв.м, создавая пространство для уютных встреч. Три спальни 10,2 кв.м, 10,2 кв.м и 13,3 кв.м обеспечивают комфорт каждому члену семьи. Функциональный холл 6,2 кв.м соединяет помещения, а прихожая 7,6 кв.м удобно зонирует входную зону. Два санузла 4 кв.м и 2,5 кв.м, постирочная 3 кв.м и гардеробные 2,4 кв.м и 5,6 кв.м добавляют удобства. Идеальный баланс стиля и практичности! Отделка WhitеВох (ПРЕДЧИСТОВАЯ) позволит вам быстро въехать и минимизировать затраты на финальную отделку. КОММУНИКАЦИИ: центральные- вода и канализация от местного водоканала, электричество 15 кВт и магистральный газ, к которому можно подключиться сразу. УЧАСТОК: Ровный, прямоугольный участок всего в 20 минутах езды от Москвы. ПРЕИМУЩЕСТВА: Дом расположен в новой застройке поселка Новое Марфино, что обеспечивает уютную атмосферу, тишину и комфортную среду для жизни. Также Вас приятно порадует соседство с дворянской усадьбой Марфино, где можно прогуляться по тенистым аллеям, вдоль берегов пруда, насладиться прогулками в многочисленных конно - спортивных клубах. ИНФРАСТРУКТУРА: Школа, сад, ДК Марфино, спорткомлекс, остановки и сетевые магазины, пункты доставки и многое другое. Объект подходит под ИПОТЕКУ. Помощь в одобрении ипотеки любой сложности. Преференции от банков - партнёров. Если Вам интересно данное предложение - звоните, с удовольствием отвечу на все вопросы!