Если цена в объявлении изменится, мы сразу сообщим вам об этом на электронную почту.
Нажимая «Подписаться», вы соглашаетесь с правилами.
продам дом, Марфино16 700 000 ₽
28 июня 2025
Дата публикации объявления
Обн. 21 июля 2025
Дата обновления объявления
139 167 ₽/м²
Чистая продажа
Термин "Чистая продажа" означает, что в квартире никто не прописан или
есть куда выписаться и вывезти вещи. Это лучший вариант для покупателя.
Вероятность срыва сделки минимальна.
Этажей1
Площадь участка8 соток
Общая площадь120 м2
ЭлектричествоЕсть
Газоснабжениецентральное
Элегантный новый дом 120 кв.м в Новом Марфино свежий взгляд на комфортную жизнь! ПОДХОДИТ ДЛЯ СЕМЕЙНОЙ ИПОТЕКИ 6%!
Мы поможем с оформлением ипотеки!
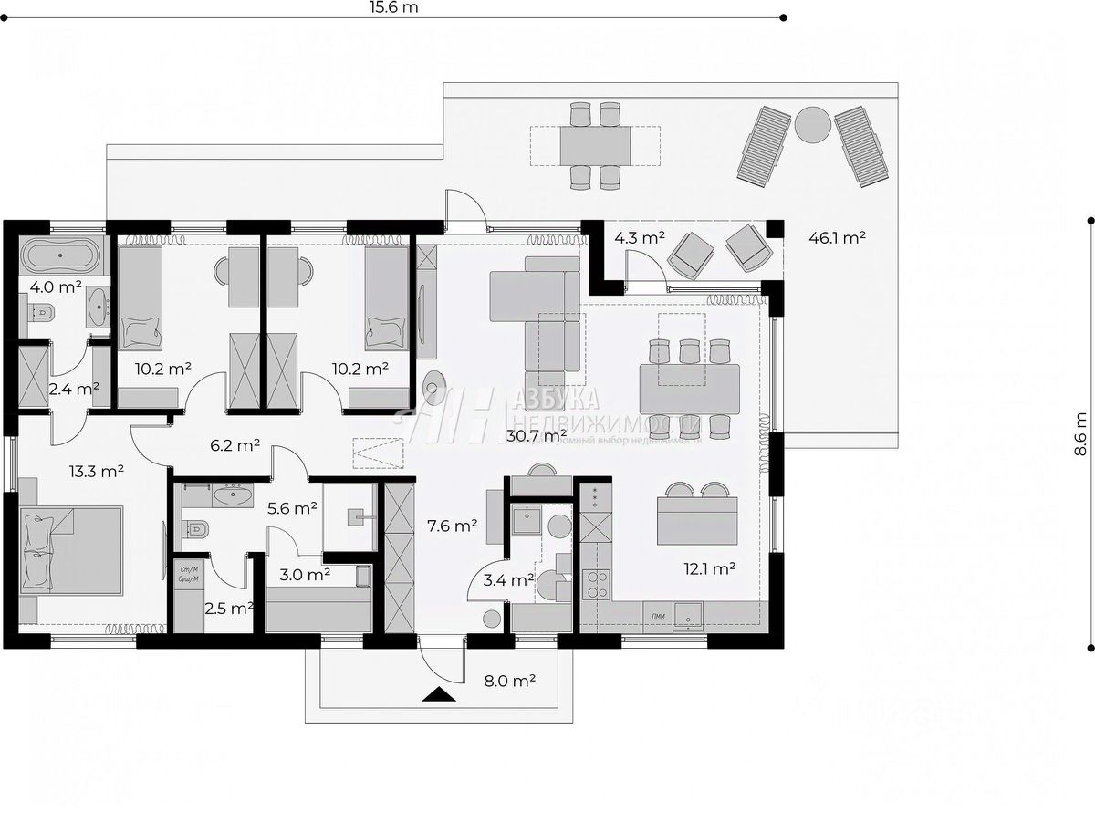
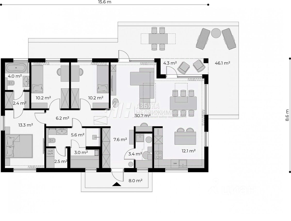
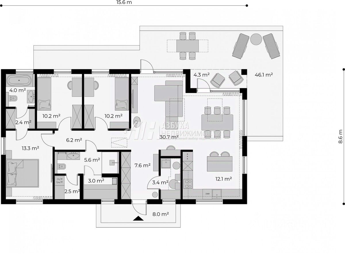
РАБОТАЕМ С ЭСКРОУ СЧЕТАМИ. РАСПОЛОЖЕНИЕ: в селе Марфино, что в 20 км от Москвы по Дмитровскому направлению. ПЛАНИРОВКА И МАТЕРИАЛЫ: Великолепный загородный дом общей площадью 120 кв.м., который станет идеальным местом для комфортной жизни. Просторная кухня-гостиная площадью 41,5 кв.м создаст атмосферу уюта и тепла, где можно собираться с семьей и друзьями. Удобная прихожая 5,6 кв.м и холл 9,9 кв.м обеспечат легкий доступ ко всем помещениям, а уютное крыльцо площадью 4,4 кв.м станет прекрасным местом для вечерних бесед на свежем воздухе.
Дом включает две большие спальни по 13,5 кв.
Элегантный новый дом 120 кв.м в Новом Марфино свежий взгляд на комфортную жизнь! ПОДХОДИТ ДЛЯ СЕМЕЙНОЙ ИПОТЕКИ 6%!
Мы поможем с оформлением ипотеки!
РАБОТАЕМ С ЭСКРОУ СЧЕТАМИ. РАСПОЛОЖЕНИЕ: в селе Марфино, что в 20 км от Москвы по Дмитровскому направлению. ПЛАНИРОВКА И МАТЕРИАЛЫ: Великолепный загородный дом общей площадью 120 кв.м., который станет идеальным местом для комфортной жизни. Просторная кухня-гостиная площадью 41,5 кв.м создаст атмосферу уюта и тепла, где можно собираться с семьей и друзьями. Удобная прихожая 5,6 кв.м и холл 9,9 кв.м обеспечат легкий доступ ко всем помещениям, а уютное крыльцо площадью 4,4 кв.м станет прекрасным местом для вечерних бесед на свежем воздухе.
Дом включает две большие спальни по 13,5 кв.м, которые идеально подойдут для детей или гостей, а также шикарную мастер-спальню площадью 22 кв.м с собственным гардеробом и санузлом, создающую атмосферу уединения и роскоши. Санузел 4,6 кв.м добавляет удобства в повседневную жизнь. Этот дом — воплощение функциональности и стиля, который подарит вам комфорт и радость на каждый день. Отделка WhitеВох (ПРЕДЧИСТОВАЯ) позволит вам быстро въехать и минимизировать затраты на финальную отделку. КОММУНИКАЦИИ: центральные- вода и канализация от местного водоканала, электричество 15 кВт и магистральный газ, к которому можно подключиться сразу. УЧАСТОК: Ровный, прямоугольный участок всего в 20 минутах езды от Москвы. ПРЕИМУЩЕСТВА: Дом расположен в новой застройке поселка Новое Марфино, что обеспечивает уютную атмосферу, тишину и комфортную среду для жизни. Также Вас приятно порадует соседство с дворянской усадьбой Марфино, где можно прогуляться по тенистым аллеям, вдоль берегов пруда, насладиться прогулками в многочисленных конно - спортивных клубах. ИНФРАСТРУКТУРА: Школа, сад, ДК Марфино, спорткомлекс, остановки и сетевые магазины, пункты доставки и многое другое. Объект подходит под ИПОТЕКУ. Помощь в одобрении ипотеки любой сложности. Преференции от банков - партнёров. Если Вам интересно данное предложение - звоните, с удовольствием отвечу на все вопросы!