Если цена в объявлении изменится, мы сразу сообщим вам об этом на электронную почту.
Нажимая «Подписаться», вы соглашаетесь с правилами.
продам дом, Абрикосовая80 000 000 ₽
21 мая 2025
Дата публикации объявления
Обн. 21 мая 2025
Дата обновления объявления
119 403 ₽/м²
Чистая продажа
Термин "Чистая продажа" означает, что в квартире никто не прописан или
есть куда выписаться и вывезти вещи. Это лучший вариант для покупателя.
Вероятность срыва сделки минимальна.
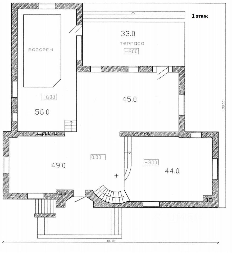
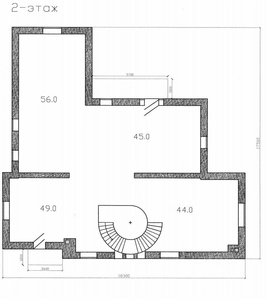
Этажей1
Площадь участка22 сотки
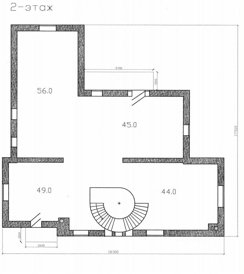
Общая площадь670 м2
Предлагается качественно построенный Дом в КП ''Вешки-Заречье'' премиум-класса на просторном участке 22 сотки при въезде в КП. Площадь дома 670 кв.м., имеет три уровня, в том числе полноценный цокольный этаж. На первом этаже предусмотрено место для бассейна, возведены несущие стены, все остальные стены-перегородки на всех уровнях не установлены, что оставляет место для Вашего личного проекта. Предусмотрены два входа на цокольный этаж, первый внутри дома, второй -отдельный вход с улицы.
Предлагается качественно построенный Дом в КП ''Вешки-Заречье'' премиум-класса на просторном участке 22 сотки при въезде в КП. Площадь дома 670 кв.м., имеет три уровня, в том числе полноценный цокольный этаж. На первом этаже предусмотрено место для бассейна, возведены несущие стены, все остальные стены-перегородки на всех уровнях не установлены, что оставляет место для Вашего личного проекта. Предусмотрены два входа на цокольный этаж, первый внутри дома, второй -отдельный вход с улицы. Дом построен из керамического кирпича Wienerberger Porotherm, который обладает исключительными теплоизоляционными свойствами и сильно превосходит привычный кирпич и газоблоки, произведены из экологически чистых и безопасных материалов, создают благоприятный микроклимат в доме и не поддаются воздействию агрессивной окружающей среды. КП ''Вешки-Заречье'' относится к благоустроенным бизнес- и элит-класса всего в 3 км от МКАД. КП по всему периметру ограждён глухим забором и имеет контрольно-пропускной пункт с круглосуточной охраной, дороги все асфальтированы. КП оснащен ВСЕМИ ЦЕТРАЛЬНЫМИ КОММУНИКАЦИЯМИ. Находится в окружении леса, оснащен чистым парком для прогулок, прудом, магазинами, фитнес клубами, салонами красоты. Удобная доступность до МКАДА и гипермаркетов. Прекрасные соседи. Один взрослый собственник, свободная продажа, полная стоимость в договоре.