Если цена в объявлении изменится, мы сразу сообщим вам об этом на электронную почту.
Нажимая «Подписаться», вы соглашаетесь с правилами.
продам дом, Марфино10 300 000 ₽
18 мая 2025
Дата публикации объявления
Обн. 18 июля 2025
Дата обновления объявления
57 222 ₽/м²
Чистая продажа
Термин "Чистая продажа" означает, что в квартире никто не прописан или
есть куда выписаться и вывезти вещи. Это лучший вариант для покупателя.
Вероятность срыва сделки минимальна.
Этажей2
Площадь участка6 соток
Общая площадь180 м2
Материал домадерево
ЭлектричествоЕсть
Газоснабжениенет
Продается новый современный двухуровневый коттедж общей площадью 180 кв.м. рядом с с. Марфино с земельным участком площадью 6 соток правильной прямоугольной формы, ровный, сухой, огорожен забором по периметру. 25 км от МКАД по Дмитровскому шоссе .
Коттедж : Выполнен из бруса , толщина стен 200 мм ( не каркас и не сибпанели). Фундамент железобетонный свайно- ростверковый ( монолит). Крыша металлочерепица . Фасад дома выглядит современно и стильно ,цвет графит, утеплен мин ватой. Дом пригоден для круглогодичного проживания. Год постройки декабрь 2023 года. . Внутренняя отделка стен гипсокартон , обои и натуральное дерево. В дальнейшем есть возможность окрасить и перекрасить в любой цвет. 1-ый этаж полы керамогранит, 2-ой этаж полы ламинат .
Продается новый современный двухуровневый коттедж общей площадью 180 кв.м. рядом с с. Марфино с земельным участком площадью 6 соток правильной прямоугольной формы, ровный, сухой, огорожен забором по периметру. 25 км от МКАД по Дмитровскому шоссе .
Коттедж : Выполнен из бруса , толщина стен 200 мм ( не каркас и не сибпанели). Фундамент железобетонный свайно- ростверковый ( монолит). Крыша металлочерепица . Фасад дома выглядит современно и стильно ,цвет графит, утеплен мин ватой. Дом пригоден для круглогодичного проживания. Год постройки декабрь 2023 года. . Внутренняя отделка стен гипсокартон , обои и натуральное дерево. В дальнейшем есть возможность окрасить и перекрасить в любой цвет. 1-ый этаж полы керамогранит, 2-ой этаж полы ламинат . Из окон прекрасный вид на лес.
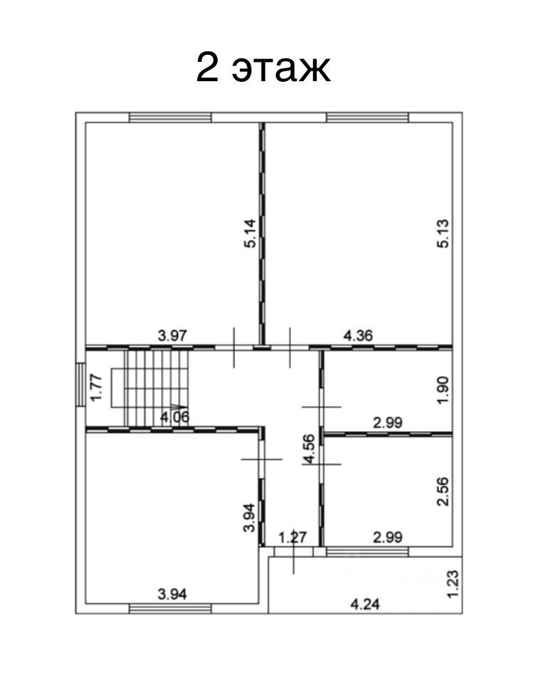
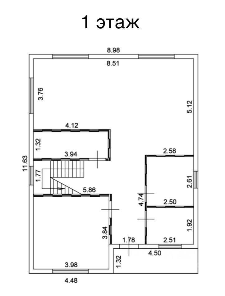
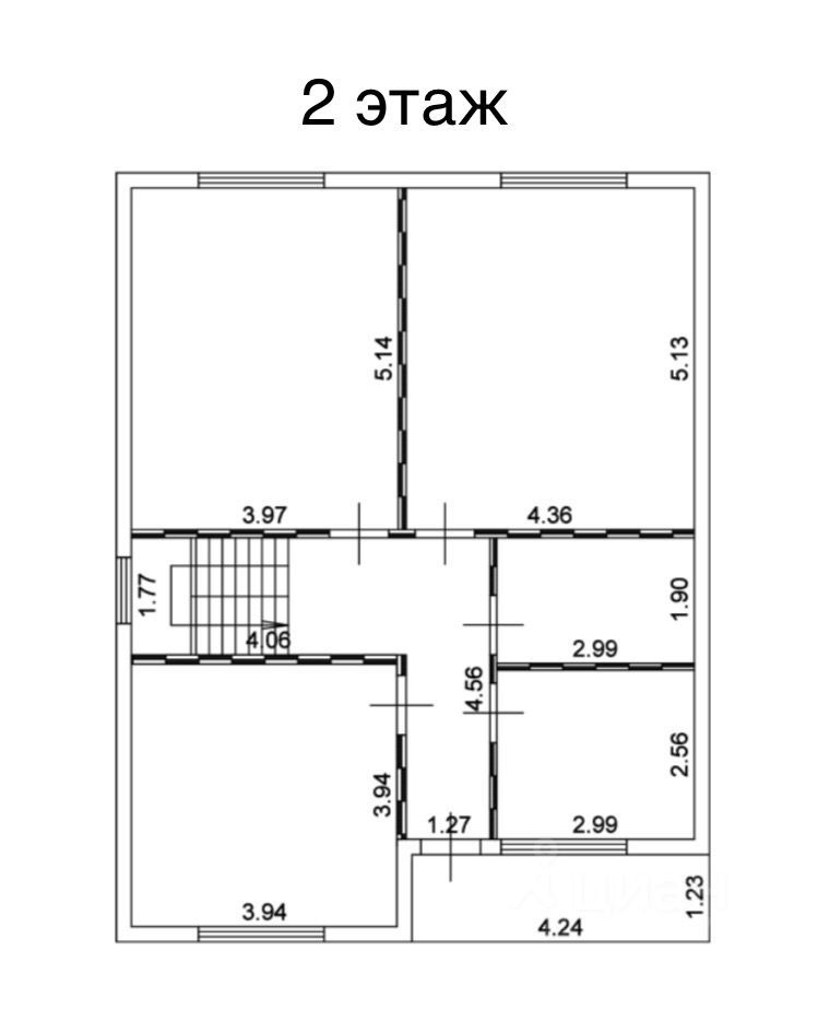
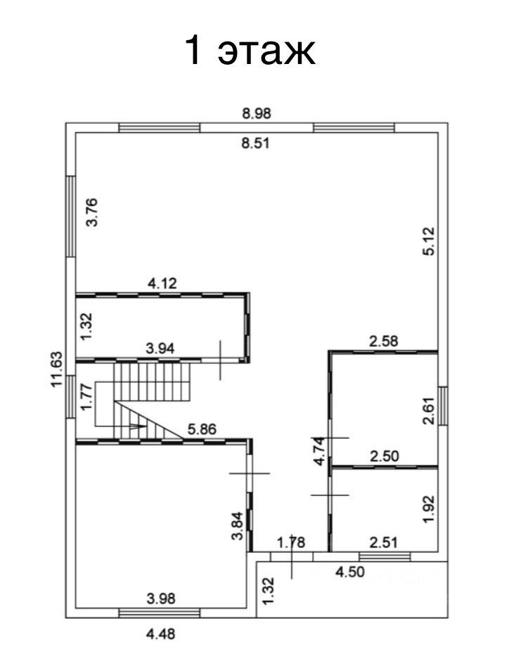
Планировка : 1 этаж: прихожая, просторная кухня-гостиная с выходом на возможную террасу и панорамным остеклением, спальня, гардеробная комната, котельная, санузел. 2 этаж: 3 спальни , гардеробная, санузел с большим окном, балкон .
Коммуникации: Электричество 380 В (15 кВт), деревенский тариф. водоснабжение - скважина (в доме горячая/холодная вода), канализация - септик. Отопление от электрического котла, . 1 этаж полностью водяной теплый пол, 2 этаж: батареи.
Инфраструктура : К дому круглогодичный подъезд, постоянно проживающие соседи. В 5 минутах езды село Марфино, в котором к вашим услугам : муниципальная школа, частная школа по индивидуальной системе образования, детские сады, сетевые супермаркеты, яхт-клуб, гольф-клуб, спортивный комплекс , бассейны, дом досуга и творчества. Для неспешных прогулок рядом потрясающий парк Усадьба Марфино. В округе огромное количество пляжей , с местами отдыха .Дом находится в окружении леса , чистый воздух и красивые окрестности. В минимальной транспортной доступности жд/станция Катуар.
Без обременений ,один собственник, свободная продажа! Все документы готовы к сделке. Возможна продажа с ремонтом ''под ключ''. ОПЕРАТИВНЫЕ ПОКАЗЫ , ЖДЁМ ВАС !