Если цена в объявлении изменится, мы сразу сообщим вам об этом на электронную почту.
Нажимая «Подписаться», вы соглашаетесь с правилами.
продам дом, Марфино14 500 000 ₽
31 мар 2025
Дата публикации объявления
Обн. 22 июня 2025
Дата обновления объявления
145 000 ₽/м²
Чистая продажа
Термин "Чистая продажа" означает, что в квартире никто не прописан или
есть куда выписаться и вывезти вещи. Это лучший вариант для покупателя.
Вероятность срыва сделки минимальна.
Этажей1
Площадь участка6,5 соток
Общая площадь100 м2
ЭлектричествоЕсть
Газоснабжениецентральное
Современный дом в Новом Марфино пространство, созданное для жизни! ПОДХОДИТ ДЛЯ СЕМЕЙНОЙ ИПОТЕКИ 6%!
Мы поможем с оформлением ипотеки!
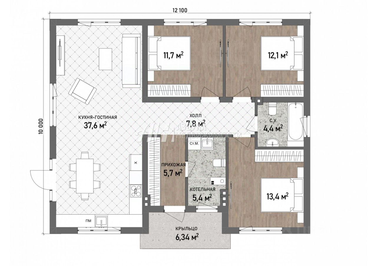
РАБОТАЕМ С ЭСКРОУ СЧЕТАМИ. РАСПОЛОЖЕНИЕ: в селе Новое Марфино, всего в 20 км от МКАД по Дмитровскому шоссе удобный и быстрый маршрут до города. ПЛАНИРОВКА И МАТЕРИАЛЫ: Удивительный загородный дом общей площадью 100 квадратных метров, который станет настоящей находкой для тех, кто ценит уют и гармонию в каждом уголке своего жилища. Широкая кухня-гостиная площадью 37,6 кв.м — сердце вашего дома, где можно собираться с семьей и друзьями. Удобные пространства включают холл 7,8 кв.м, прихожую 5,7 кв.м, котельную 5,4 кв.м и санузел 4,4 кв.м, а три уютные спальни (две по 12 кв.м и одна 13,5 кв.
Современный дом в Новом Марфино пространство, созданное для жизни! ПОДХОДИТ ДЛЯ СЕМЕЙНОЙ ИПОТЕКИ 6%!
Мы поможем с оформлением ипотеки!
РАБОТАЕМ С ЭСКРОУ СЧЕТАМИ. РАСПОЛОЖЕНИЕ: в селе Новое Марфино, всего в 20 км от МКАД по Дмитровскому шоссе удобный и быстрый маршрут до города. ПЛАНИРОВКА И МАТЕРИАЛЫ: Удивительный загородный дом общей площадью 100 квадратных метров, который станет настоящей находкой для тех, кто ценит уют и гармонию в каждом уголке своего жилища. Широкая кухня-гостиная площадью 37,6 кв.м — сердце вашего дома, где можно собираться с семьей и друзьями. Удобные пространства включают холл 7,8 кв.м, прихожую 5,7 кв.м, котельную 5,4 кв.м и санузел 4,4 кв.м, а три уютные спальни (две по 12 кв.м и одна 13,5 кв.м) создадут атмосферу уюта и покоя.
Не забудьте и про уютное крыльцо площадью 6,34 кв.м, где вы сможете наслаждаться утренним кофе или вечерними беседами на свежем воздухе. Этот дом — идеальное сочетание функциональности и комфорта, которое подарит вам множество приятных моментов и незабываемых воспоминаний. Отделка WhitеВох (ПРЕДЧИСТОВАЯ) позволит вам быстро въехать и минимизировать затраты на финальную отделку. КОММУНИКАЦИИ: Дом подключен к центральным системам электричество и водоснабжение обеспечивают удобство и современные условия проживания. Газ расположился по границе. УЧАСТОК: Правильной формы, ровный и сухой идеальная основа для благоустройства. ПРЕИМУЩЕСТВА: Комфортный доступ к дому: основная дорога асфальтирована, финальный отрезок выложен прочным покрытием из асфальтовой крошки удобный проезд в любое время года. ИНФРАСТРУКТУРА: В нескольких минутах езды детская площадка, футбольное поле, спортивный комплекс. В пешей доступности усадьба Марфино с живописными прудами и старинным мостом. В 30 минутах ходьбы остановка общественного транспорта, магазины и аптека. Все, что нужно для комфортной жизни, рядом! Объект подходит под ИПОТЕКУ. Помощь в одобрении ипотеки любой сложности. Преференции от банков - партнёров. Если Вам интересно данное предложение - звоните, с удовольствием отвечу на все вопросы!