Если цена в объявлении изменится, мы сразу сообщим вам об этом на электронную почту.
Нажимая «Подписаться», вы соглашаетесь с правилами.
продам дом, Марфино15 750 000 ₽
31 мар 2025
Дата публикации объявления
Обн. 26 июня 2025
Дата обновления объявления
131 250 ₽/м²
Чистая продажа
Термин "Чистая продажа" означает, что в квартире никто не прописан или
есть куда выписаться и вывезти вещи. Это лучший вариант для покупателя.
Вероятность срыва сделки минимальна.
Этажей1
Площадь участка6,7 соток
Общая площадь120 м2
ЭлектричествоЕсть
Газоснабжениецентральное
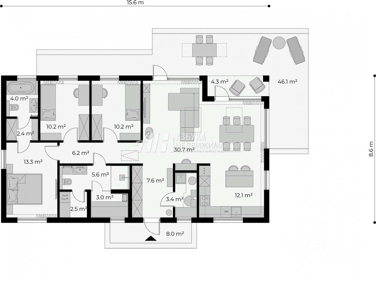
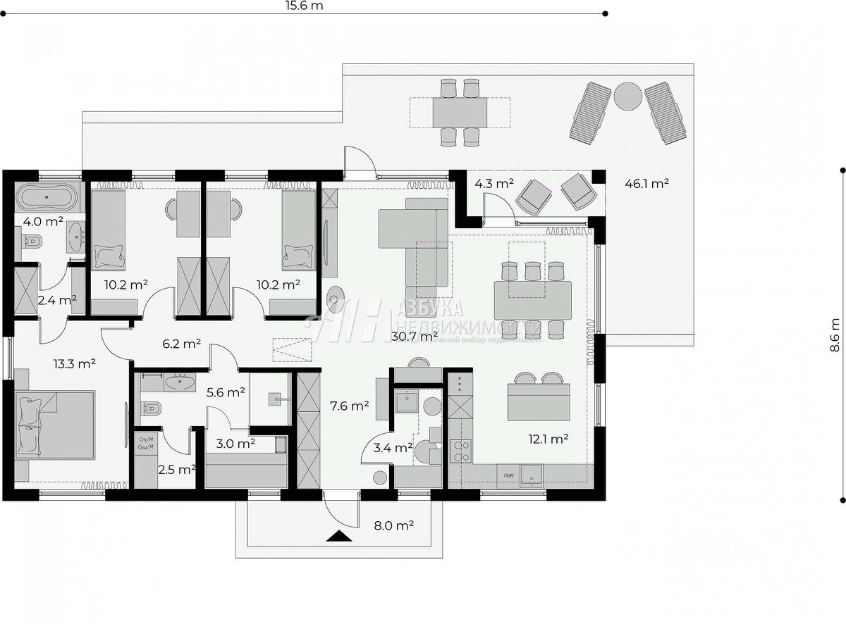
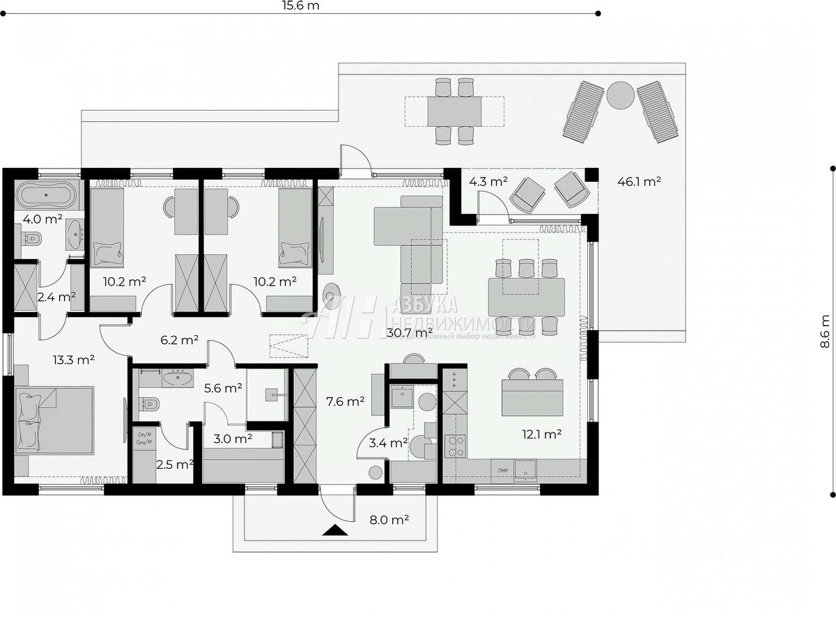
Стильный и просторный дом 120 кв.м в Новом Марфино ваш идеальный загородный вариант!
ПОДХОДИТ ДЛЯ СЕМЕЙНОЙ ИПОТЕКИ 6%!
Мы поможем с оформлением ипотеки!
РАБОТАЕМ С ЭСКРОУ СЧЕТАМИ. РАСПОЛОЖЕНИЕ: В живописном месте Подмосковья, всего в 20 км от Москвы по Дмитровскому шоссе, в селе Марфино. Отличная транспортная доступность сочетается с природным окружением. ПЛАНИРОВКА И МАТЕРИАЛЫ: Кухня-столовая 12,1 кв.м плавно переходит в просторную гостиную 30,7 кв.м место, где уют и тепло наполняют каждый вечер. Три комфортные спальни (10,2 кв.м, 10,2 кв.м и 13,3 кв.м) подойдут для большой семьи. Холл 6,2 кв.м объединяет жилые зоны, прихожая 7,6 кв.м делает вход удобным, а два санузла (4 кв.м и 2,5 кв.м) избавляют от утренних очередей. Гардеробные (2,4 кв.
Стильный и просторный дом 120 кв.м в Новом Марфино ваш идеальный загородный вариант!
ПОДХОДИТ ДЛЯ СЕМЕЙНОЙ ИПОТЕКИ 6%!
Мы поможем с оформлением ипотеки!
РАБОТАЕМ С ЭСКРОУ СЧЕТАМИ. РАСПОЛОЖЕНИЕ: В живописном месте Подмосковья, всего в 20 км от Москвы по Дмитровскому шоссе, в селе Марфино. Отличная транспортная доступность сочетается с природным окружением. ПЛАНИРОВКА И МАТЕРИАЛЫ: Кухня-столовая 12,1 кв.м плавно переходит в просторную гостиную 30,7 кв.м место, где уют и тепло наполняют каждый вечер. Три комфортные спальни (10,2 кв.м, 10,2 кв.м и 13,3 кв.м) подойдут для большой семьи. Холл 6,2 кв.м объединяет жилые зоны, прихожая 7,6 кв.м делает вход удобным, а два санузла (4 кв.м и 2,5 кв.м) избавляют от утренних очередей. Гардеробные (2,4 кв.м и 5,6 кв.м) и постирочная 3 кв.м обеспечивают порядок. Отделка WhitеВох (ПРЕДЧИСТОВАЯ) позволит вам быстро въехать и минимизировать затраты на финальную отделку. КОММУНИКАЦИИ: Централизованные водоснабжение, канализация и электричество 15 кВт, возможность подключения к магистральному газу.
УЧАСТОК: Ровный, сухой, правильной формы. Расположен в уютном поселке в окружении природы, но при этом всего в 20 минутах от столицы. ПРЕИМУЩЕСТВА: Дом находится в перспективной застройке поселка Новое Марфино, что создает камерную атмосферу. В нескольких минутах знаменитая усадьба Марфино с живописными аллеями, парками и прудом. ИНФРАСТРУКТУРА: Все необходимое рядом: школа, детский сад, Дом культуры, спортивный комплекс, сетевые магазины, пункты доставки, удобная транспортная развязка. Объект подходит под ИПОТЕКУ. Помощь в одобрении ипотеки любой сложности. Преференции от банков - партнёров. Если Вам интересно данное предложение - звоните, с удовольствием отвечу на все вопросы!