Если цена в объявлении изменится, мы сразу сообщим вам об этом на электронную почту.
Нажимая «Подписаться», вы соглашаетесь с правилами.
продам дом, Марфино14 150 000 ₽
31 мар 2025
Дата публикации объявления
Обн. 22 июня 2025
Дата обновления объявления
141 500 ₽/м²
Чистая продажа
Термин "Чистая продажа" означает, что в квартире никто не прописан или
есть куда выписаться и вывезти вещи. Это лучший вариант для покупателя.
Вероятность срыва сделки минимальна.
Этажей1
Площадь участка6 соток
Общая площадь100 м2
ЭлектричествоЕсть
Газоснабжениецентральное
Современный дом в Новом Марфино пространство, созданное для жизни! ПОДХОДИТ ДЛЯ СЕМЕЙНОЙ ИПОТЕКИ 6%!
Мы поможем с оформлением ипотеки!
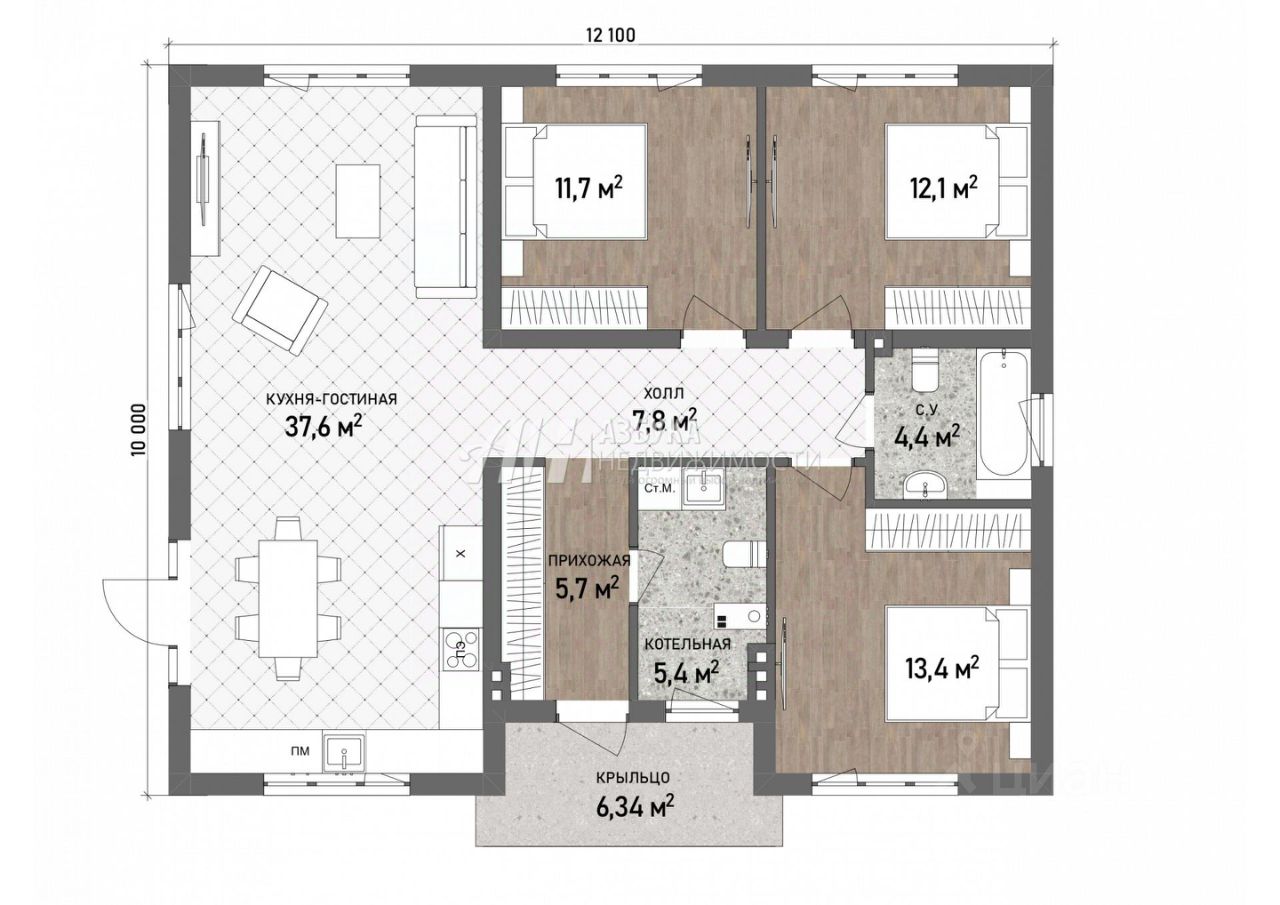
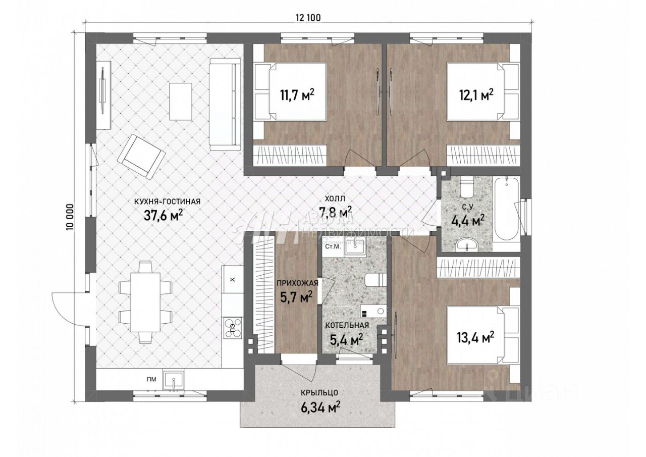
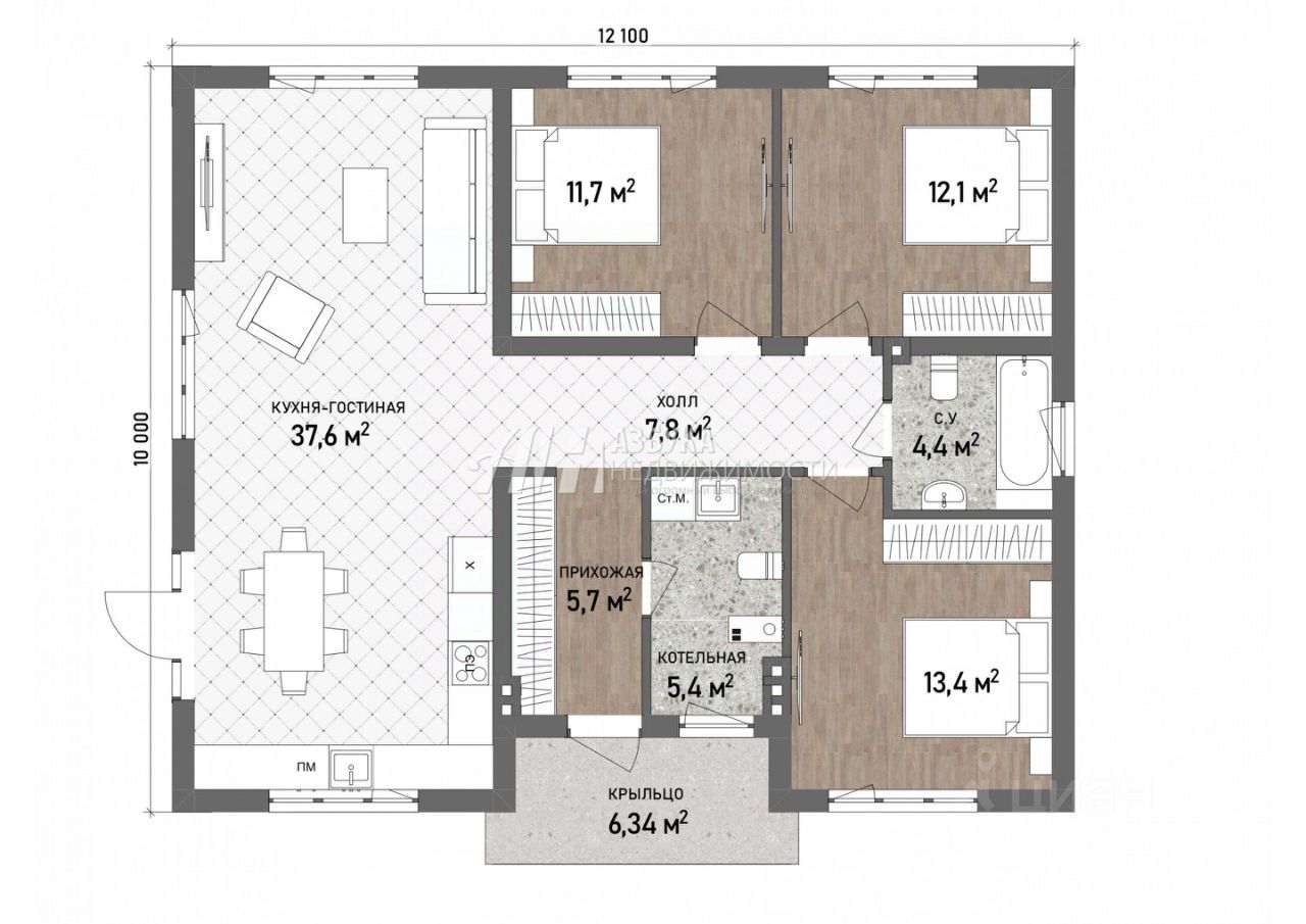
РАБОТАЕМ С ЭСКРОУ СЧЕТАМИ. РАСПОЛОЖЕНИЕ: в селе Новое Марфино, всего в 20 км от МКАД по Дмитровскому шоссе удобный и быстрый маршрут до города. ПЛАНИРОВКА И МАТЕРИАЛЫ: Просторная кухня-гостиная 37,6 кв.м наполнена светом! Холл 7,8 кв.м объединяет три комфортные спальни (11,7 кв.м, 12,1 кв.м и 13,4 кв.м), создавая удобную планировку. Функциональная прихожая. Санузел стильный и продуманный. А крыльцо формирует гармоничное входное пространство. Все это в 100 кв.м шикарного дома! Отделка WhitеВох (ПРЕДЧИСТОВАЯ) позволит вам быстро въехать и минимизировать затраты на финальную отделку.
Современный дом в Новом Марфино пространство, созданное для жизни! ПОДХОДИТ ДЛЯ СЕМЕЙНОЙ ИПОТЕКИ 6%!
Мы поможем с оформлением ипотеки!
РАБОТАЕМ С ЭСКРОУ СЧЕТАМИ. РАСПОЛОЖЕНИЕ: в селе Новое Марфино, всего в 20 км от МКАД по Дмитровскому шоссе удобный и быстрый маршрут до города. ПЛАНИРОВКА И МАТЕРИАЛЫ: Просторная кухня-гостиная 37,6 кв.м наполнена светом! Холл 7,8 кв.м объединяет три комфортные спальни (11,7 кв.м, 12,1 кв.м и 13,4 кв.м), создавая удобную планировку. Функциональная прихожая. Санузел стильный и продуманный. А крыльцо формирует гармоничное входное пространство. Все это в 100 кв.м шикарного дома! Отделка WhitеВох (ПРЕДЧИСТОВАЯ) позволит вам быстро въехать и минимизировать затраты на финальную отделку. КОММУНИКАЦИИ: Дом подключен к центральным системам электричество и водоснабжение обеспечивают удобство и современные условия проживания. Газ расположился по границе. УЧАСТОК: Правильной формы, ровный и сухой идеальная основа для благоустройства. ПРЕИМУЩЕСТВА: Комфортный доступ к дому: основная дорога асфальтирована, финальный отрезок выложен прочным покрытием из асфальтовой крошки удобный проезд в любое время года. ИНФРАСТРУКТУРА: В нескольких минутах езды детская площадка, футбольное поле, спортивный комплекс. В пешей доступности усадьба Марфино с живописными прудами и старинным мостом. В 30 минутах ходьбы остановка общественного транспорта, магазины и аптека. Все, что нужно для комфортной жизни, рядом! Объект подходит под ИПОТЕКУ. Помощь в одобрении ипотеки любой сложности. Преференции от банков - партнёров. Если Вам интересно данное предложение - звоните, с удовольствием отвечу на все вопросы!