Дом, Маяковского, 200 Показать на карте
Большие Дворы
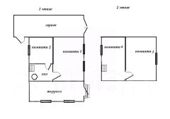
Продается дом 150 кв.м. на участке 10,72 сотки.В доме сделан качественный ремонт. На первом этаже расположен совмещенный санузел, кухонная зона, большой просторный зал, выход в котельную.На втором этаже расположены 2 комнаты и две просторные гардеробных.На участке расположен 2-ух этажный гараж и навес на 2 автомобиля. В 5 минутах езды на автомобили или общественном транспорте расположены школа, детский сад, магазины, супермаркеты. Рядом с домом автобусная остановка.1 взрослый собственник более 10 лет. Рассматриваются любые условия сделки: материнский капитал, ипотека (оказываем квалифицированную помощь в одобрении, консультации бесплатно). Номер объекта: #1/537925/11635
150 м2
2 этажа
Кирпич
- Показать контакты
- Добавить в избранное
150 м2
2 этажа
Кирпич
12 800 000
85 333 /м2
